1. 서 론
제주시 한경면 용수리 전면 1.2 km 해역에 건설된 용수 파력발전소에서 생산된 전력의 송전 및 시설 운용을 위해서 육상의 전력계통과 연결하는 해저케이블 공사가 2014년 11월에 시공완료 되어 광케이블 통신 테스트 후 준공되었으나 2015년 3월에 해상구조물 측에서 약 45 m 지점에서 광케이블의 단락과 전력케이블의 손상이 확인되었다. 용수 파력발전소의 위치와 수심은 Fig. 1과 같다.
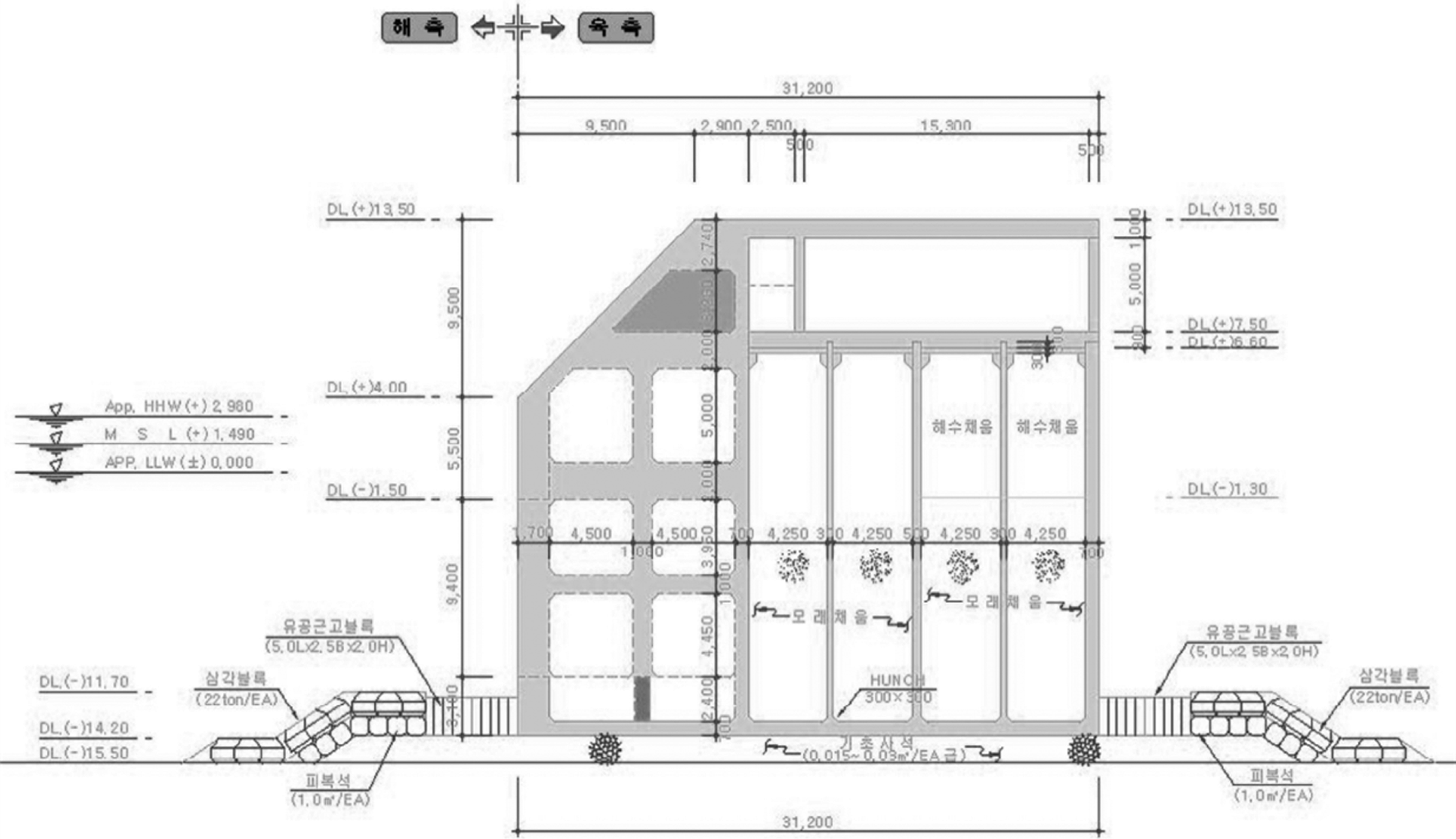
해저케이블 입상부의 보호공법은 Fig. 2과 같이 콘크리트백, 돌망태, 암타이밴드와 셋트앙카로 구성되었다. 16 ton 중량의 콘크리트백과 돌망태를 각각 근고블록과 삼각블록 상단에 거치하였으며, 암타이밴드와 셋트앙카는 파력 케이슨 벽체에 해저케이블을 고정하는 설비로 시공되었다.
해저케이블 고장 발생 후 수중조사 결과, 콘크리트백과 돌망태가 유실되었으며, 이로 인해 파력에 의한 케이블 요동 현상이 발생하여 암타이밴드와 셋트앙카가 하단부에서부터 차례대로 유실되어 광케이블 단락이 발생한 것으로 추정되었다.
본 연구에서는 사고발생 추정기간 동안 50년 빈도 이상의 고파랑이 발생하였을 가능성과 피복석 설계중량을 과소산정했을 가능성에 대해서 검토하였다. 해저케이블 보호공으로 시공된 콘크리트백과 돌망태의 중량은 항만 및 어항설계기준·해설(Ministry of Oceans and Fisheries, 2014)에서 혼성제 제두부 피복재 안정질량 산정방법으로 계산되었으며, 케이슨이 정북방향에서 약 45도 기울어져 시공된 점을 고려하여 N 방향 설계파고 6.4 m에 대해서 16 ton으로 시공되었다.
본 연구에서는 현행 항만 및 어항 설계기준과 함께 큰 입사각으로 입사하는 파랑에 대한 제두부 설계 중량 산정을 위해 Kimura et al.(1994)의 연구를 참조하여 콘크리트 블록과 돌망태에 대해서 안정질량을 직접 계산하고, 그 결과를 비교하여 보호공 이탈의 원인을 고찰하였다.
2. 파랑조건 검토
케이블 단락 시기를 특정할 수 없기 때문에, 케이블 준공 전 검사가 있은 후 2014년 11월부터 전력케이블 단락을 발견한 2015년 3월까지 케이슨 설치 위치에서의 파고자료를 검토하였다. 파력 구조물 주변에서 파고를 관측한 자료가 없기 때문에 기상청에서 운영하는 바라도 부이에서의 관측자료와 KIOST에서 재현한 파랑추산모델 결과로부터 차귀도 인근의 파고를 계산한 자료를 참조하였다.
2.1 마라도 관측자료
기상청에서 운영하고 있는 마라도 관측부이는 위도 33°04', 경도 126°01'에 위치하고 있으며, NOMAD 6 × 3 형태의 부이를 사용한다. 수심은 130 m이고, 파고센서의 수심은 -0.7 m이다. 2008년 11월부터 관측을 시작했으며, 유의파고, 최대파고, 평균파고, 파주기, 파향, 풍향, 풍속, 기압, 습도, 기온, 수온의 관측자료를 매시간별로 Orbcomm, Inmarsat 통신방법으로 기상청 홈페이지에 제공하고 있으며, 월별 자료는 해양기상월보로 발간되고 있다. 2014년 11월부터 2015년 3월까지의 유의파고와 최대파고를 Fig. 3에 도시하였고, 월별 최대 유의파고가 관측된 일시와 동일시각의 유의파고, 월별 최대유의파고와 주기 및 파향을 Table 1에 정리하였다. 관측결과 2014년 12월 16일에 최대파고 9.1 m, 유의파고 6.8 m가 발생하였으며, N 방향파로 관측되었다.
2.2 파랑추산자료
본 연구에서는 KIOST에서 JMA 바람자료와 SWAN 수치모델을 사용하여 계산한 마라도와 차귀도 부근의 파랑추산자료로부터 2014년 11월부터 2015년 3월까지의 파랑정보를 분석하였다. 분석지점의 위치는 마라도와 차귀도(126.13306°E, 33.32694°N)이다. 마라도에서 관측된 유의파고를 파랑추산자료로부터 구한 마라도 유의파고와 함께 Fig. 4에 도시하였다. 마라도에서 관측자료와 파랑추산자료는 유의파고 값이 대부분 잘 일치하였지만, 최대 파고 6.8 m가 발생한 12월 16일에는 파랑추산자료에서 12월 1일에 발생한 5.9 m보다 더 작은 유의파고(5.4 m)로 계산되었다. 최대파가 발생하는 경우에 마라도 관측자료는 대부분 N 방향파였으며, 차귀도 추산자료는 NNW 방향 또는 NW 방향으로 파향이 나타났다.
2.3 재현빈도 검토
사고 발생 추정 시기동안 50년 빈도파 이상 고파랑의 발생 여부를 검토하기 위해 전해역 심해설계파 보고서(KORDI, 2005)의 방향별 재현빈도별 심해설계파를 참조하여 마라도에서의 관측파고를 검토하였다. 파력발전 케이슨 설치 위치와 차귀도 추산자료의 위치, 마라도 부이의 위치와 전해역 심해설계파 보고서에서 설계파고 계산 격자의 위치를 Fig. 6에 도시하였다. 차귀도 추산자료의 위치는 케이슨 위치로부터 약 1 km 떨어진 위치이므로, 거의 동일한 위치로 간주할 수 있다.
마라도 관측부이의 결과를 055137 지점과 055138 지점의 N 방향과 NNW 방향의 재현빈도별 유의파고와 비교하였다. 관측부이와 파랑추산결과에서 최대 유의파고가 발생한 경우에 파향이 각각 NNW와 N 방향이기 때문에 이 두 파향에 대해서 재현기간별 유의파고를 Table 3에 정리하였다.
마라도에서의 최대 유의파고 6.8 m는 N 방향에 대해서는 10년에서 20년 사이의 재현빈도이며, NNW에 대해서는 10년 빈도 파고보다 낮았다. 차귀도 파랑추산자료에서 최대 유의파고 5.9 m는 모든 방향에서 재현 빈도 10년 파고보다 낮았다. 즉, 해저케이블이 준공된 2014년 11월부터 케이블 단락이 발견된 2015년 3월 사이에는 재현빈도 50년 이상의 고파랑은 발생하지 않은 것으로 보인다.
3. 안정 중량 계산
3.1 안정 중량 계산식
우리나라에서 해양구조물의 설계의 기준이 되는 항만 및 어항 설계기준·해설(해양수산부, 2014)에서는 혼성제 사석부의 피복석 또는 블록의 안정질량 계산식을 다음의 Hudson 식에 의해 산정한다.
여기서, M은 사석 또는 블록의 안정에 필요한 최소질량(t), ρr은 사석 또는 블록의 밀도(t/m2), H는 안정계산에 사용되는 파고(m), Ns은 주로 피복석의 형상, 경사, 피해율 등에 의해서 정해지는 안정수, Sr은 사석이나 블록의 해수에 대한 비중이다. 안정수 Ns 치는 수심, 파의 제원, 사석부의 형상, 피복재의 특성 뿐 아니라 그 위치(제간부나 제두부 등)에 따라서도 다르므로 조건에 적합한 수리모형실험에 의해서 적절히 결정할 필요가 있으며, 혼성제 사석부에 대해서는 특히, Takahashi et al.(1990)이 Tanimoto et al.(1982)의 식에 사석부 부근의 유속과 파향 등의 영향을 고려하여 제시한 다음과 같은 식을 사용해서 안정수를 결정한다.
여기서, h'는 기초사석부(피복층 제외)의 마루의 수심(m), l은 파가 직각으로 입사할 경우에는 앞 어깨폭 BM을, 파가 사각으로 입사할 경우는 앞 어깨폭 또는 근고방괴의 폭 중에서(K2)B가 큰 편의 값을 취하며, L'는 수심 h'에서 설계유의파 주기에 대한 파장(m), αs는 대상지점이 수평한 경우의 보정계수(= 0.45)이고 β는 법선방향과 파의 진행방향이 이루는 각이다. 또한, 제두부에서 직립부 끝부분의 모서리로 국소적으로 빠른 유속이 발생하기 때문에 피복재가 움직이기 쉽고 이곳의 피복재질량의 할증에 대해서는 수리실험을 하지 않는 경우에 제간부 질량의 1.5배 이상으로 하는 것이 표준이며, 케이슨식의 방파제일 경우 제두부분의 케이슨 1개 정도를 범위의 표준으로 한다. 본 연구에서 대상으로 하고 있는 용수 파력발전소는 단 1개의 케이슨으로 설치된 독립구조물이므로, 케이슨 전체에 대해서 제두부로 보는 것이 합리적이다.
Tanimoto et al.(1982)은 미소진폭파 이론으로부터 정상파 조건일 때 직립벽 전면 바닥에서 최대유속을 다음과 같이 표현하였다.
여기서, H'는 수심 h'에서의 파고이다. Kimura et al.(1994)은 제두부에서의 바닥 유속을 표현하기 위해서, 변수 K를 다음과 같이 나타내었다.
여기서, τ는 제두부에서의 유속 보정 계수로서, Kimura et al.(1994)은 규칙파에 대한 수리모형실험에서 제두부 모서리에서부터 1.0H 만큼 떨어진 위치에서의 유속을 전자기 유속계로 측정하여 입사각 β = 0°와 45°에 대해서 τ = 1.4를, β = 60°에 대해서 τ = 2.5를 제안하였다. τ = 1.4인 경우에 K = 0.22K1이 되며, 이는 항만 및 어항 설계기준·해설과 동일하지만, τ = 2.5인 경우(β = 60°)에는 K = 0.70K1이며, 이는 항만 및 어항 설계기준·해설에서 고려하지 않고 있다.
차귀도에서 추산된 최대유의파고가 5.9 m(NNW)이고, 이때 관측된 주기가 11.2초 인 것을 고려하여, 유의파고 6.0 m, 주기 11초의 N 방향과 NNW 방향입사에 대해서 각각 피복석 안정질량을 계산하였다. 케이슨이 정북방향을 기준으로 정확히 45o 회전하여 설치된 것은 아니며 N 방향과 NNW 방향은 22.5° 차이지만, Kimura et al.(1994)의 연구결과를 적용하기 위해 N 방향 입사파를 45° 입사파로, NNW 방향 입사파를 60o로 보았다. Fig. 7의 표준단면을 참조하여 전면수심 h는 15.50 m, 기초사석부의 마루의 수심 h'은 14.0 m, l은 9.40 m, 파장 L'는 118.64m로 하였으며, 돌망태 채움량을 70%로 가정하여 1.8 t/m3, 콘크리트 블록의 밀도는 2.3 t/m3으로 하였다.
3.2 안정 중량 계산
(1) N 방향 입사파에 대해서 제간부 피복재의 안정질량을 구하기 위한 안정수 계산은 다음과 같다.
돌망태의 경우에 안정질량은 다음과 같이 계산된다.
콘크리트 블록의 경우에 안정질량은 다음과 같이 계산된다.
(2) NNW 방향 입사파에 대해서 제간부 피복재의 안정질량을 구하기 위한 안정수 계산은 다음과 같다.
돌망태의 경우에 안정질량은 다음과 같이 계산된다.
콘크리트 블록의 경우에 안정질량은 다음과 같이 계산된다.
(3) N 방향 입사파에 대해서 제두부 피복재의 안정질량을 구하기 위한 안정수는 K1 = 0.71과 τ = 1.4를 식(8)에 대입하여 다음과 같이 계산된다.
돌망태의 경우에 안정질량은 다음과 같이 계산된다.
계산된 안정질량 M은 제간부 안정질량에 1.5배한 11.02 t보다 작으므로, 피복재 안정질량은 11.02 t이다.
콘크리트 블록의 경우에 안정질량은 다음과 같이 계산된다.
계산된 안정질량 M은 제간부 안정질량에 1.5배한 3.13 t보다 작으므로, 피복재 안정질량은 3.13 t이다.
(4) NNW 방향 입사파에 대해서 제두부 피복재의 안정질량을 구하기 위한 안정수는 K1 = 0.71과 τ = 2.5를 식(8)에 대입하여 다음과 같이 계산된다.
돌망태의 경우에 안정질량은 다음과 같이 계산된다.
계산된 안정질량 M은 제간부 안정질량에 1.5배한 22.95 t보다 크므로, 피복재 안정질량은 58.85 t이다.
콘크리트 블록의 경우에 안정질량은 다음과 같이 계산된다.
계산된 안정질량 M은 제간부 안정질량에 1.5배한 8.79 t보다 크므로, 피복재 안정질량은 16.76 t이다.
3.3 종합 검토
N 파향과 NNW 파향에 대해서 계산된 제간부와 제두부의 안정질량을 Table 4에 정리하였다. 먼저 파고 6.0 m, 주기 11초의 N 방향파에 대해서 돌망태의 안정질량은 제간부와 제두부에서 각각 7.35 t과 11.02 t으로 계산되었으며, NNW 방향 입사파에 대해서는 15.45 t과 58.85 t으로 N 방향파에 비해서 각각 2.10배와 5.34배로 증가하였다. 콘크리트 블록의 경우에는 N 방향파에 대해서 제간부와 제두부에서 각각 2.09 t과 3.13 t으로 계산된 반면, NNW 방향파에 대해서는 5.86 t과 16.76 t으로 N 방향파에 비해서 각각 2.80배와 5.35배로 증가하였다. 이는 항만 및 어항 설계기준·해설에서 다루고 있지 않은 60° 입사각에 Kimura et al.(1994)의 연구결과를 적용한 효과이다. 콘크리트 블록에 비해서 돌망태의 안정질량이 3배 이상 소요되는 것은 돌망태 돌채움량이 70%이기 때문에 밀도를 1.8 t/m3로 가정했기 때문이다.
검토결과, 16 t의 돌망태와 콘크리트백을 케이블 상부에 거치한 보호공은 파랑추산자료에서 계산된 최대유의파고와 유사한 파고 6.0 m, 주기 11초의 파에 대해서 N 방향파에 대해서는 안정하였지만, NNW 방향파에 대해서는 안정질량보다 질량이 부족하였다. 그리고, 계산에 사용한 파랑제원이 설계파고가 아닌 점을 고려하면 50년 빈도의 설계파고에 대해서는 Table 4에 제시된 안정질량보다 더 큰 질량의 피복재가 필요한 것으로 추정된다.
4. 결 론
본 연구에서는 용수 파력발전소 계통 연계 시스템에서 해저케이블이 단락된 사고에 대해서 케이블 보호공으로 설치된 돌망태와 콘크리트백의 이탈원인을 살펴보았다.
먼저, 재현빈도 50년 이상의 고파랑 발생가능성을 검토하기 위해서 기상청에서 제공하는 마라도 관측자료와 KIOST에서 계산된 마라도와 차귀도 인근의 파랑추산자료를 분석하였다. 마라도 관측자료에서 최대유의파고는 6.8 m(NNW)였으며, 차귀도 파랑추산자료에서 최대유의파고는 5.9 m(NNW)였다. 전해역 심해설계파와 비교하여 대상 기간 동안 50년 빈도 이상의 고파랑이 발생하지 않은 것으로 나타났다.
대상 기간 동안의 파랑추산자료를 참고하여 파고 6.0 m 조건에 대해서 돌망태와 콘크리트 블록의 안정질량을 계산하였다. 독립구조물이므로 혼성제의 제두부 조건으로 검토하였으며, 항만 및 어항설계기준·해설과 Kimura et al.(1994)의 연구결과를 참고하여 NNW 방향파를 60° 입사각으로 보고 계산하였다. 그 결과 NNW 방향파에 대해서 58.85 t의 돌망태와 16.76 t의 콘크리트 블록이 필요하였으며, 16 t의 돌망태와 콘크리트백은 질량 부족으로 이탈한 것으로 사료된다. 특히, 58 t 규모의 돌망태는 실질적으로 불가능하기 때문에 케이블 상부보호공으로 돌망태공을 사용한 것은 적절하지 않았으며, 케이슨 사면 피복재 시공단계에서 케이블을 매립할 수 있었다면 케이슨의 단락 사고는 일어나지 않았을 것이다.
일반적으로 방파제는 입사파에 거의 수직하도록 배치하기 때문에 입사파향이 60° 이상 경사질 경우는 거의 없으나, 단독 케이슨과 같은 독립구조물은 임의 방향의 다방향파에 노출되기 때문에 제두부 조건에 해당될 뿐만 아니라 급경사로 파랑이 입사하는 경우를 고려해야 한다. 그러나, 이에 관한 연구는 현행 항만 및 어항 설계기준에 수록되지 못하고 있으며 그 후속 연구 또한 거의 찾아볼 수 없었다. 또한, 60°입사각에 대해서 Kimura et al.(1994)이 제안한 τ = 2.5 값은 독립구조물이 아닌 일반적인 방파제에 대한 수리실험 결과로 제안된 값이므로, 본 사례와 같은 단독케이슨에 적용이 가능한지에 대해서 추가적인 연구가 필요할 것이다. 본 사례와 같이 흔히 사용되는 방파제 형식이 아닌 경우의 피복재 설계의 경우에는 수리모형실험을 통한 검증과 설계가 필요한 것으로 보인다.

